Swansea Historical Society

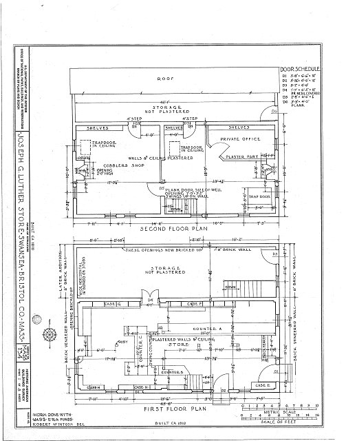
Luther Store

 

The Swansea Historical Society gained ownership of the Luther Store on June 17th, 1952.

The Luther Store

 

Luther Store - 1935

Luther Store - 2018